REQUEST A TOUR If you would like to see this home without being there in person, select the "Virtual Tour" option and your agent will contact you to discuss available opportunities.
In-PersonVirtual Tour

Listed by ADAM CASTILLO • DYNASTY REAL ESTATE
$ 135,000
Est. payment /mo
Active
13543 Monterey Road Desert Hot Springs, CA 92240
7,405 SqFt
UPDATED:
Key Details
Property Type Vacant Land
Sub Type Unimproved Land
Listing Status Active
Purchase Type For Sale
Square Footage 7,405 sqft
Price per Sqft $18
MLS Listing ID CRIV25230115
HOA Y/N No
Lot Size 7,405 Sqft
Property Sub-Type Unimproved Land
Source Datashare California Regional
Property Description
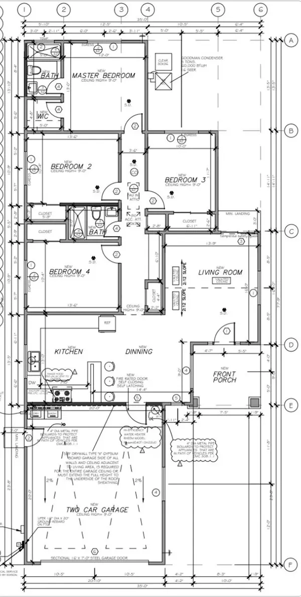
Shovel-ready lot in Desert Hot Springs! Flat 7,405 sq ft lot with approved plans for a 1,486 sq ft, 4 bed / 2 bath home. Water meter installed, electric on property, and plans are fully approved; ready to pull permits and start building. Great location near spas, shopping, and a short drive to Palm Springs. Plans available upon request. A rare opportunity to build immediately; utilities nearby and no delays!
Location
State CA
County Riverside
Interior
Fireplace No
Exterior
View Other

© 2025 BEAR, CCAR, bridgeMLS. This information is deemed reliable but not verified or guaranteed. This information is being provided by the Bay East MLS or Contra Costa MLS or bridgeMLS. The listings presented here may or may not be listed by the Broker/Agent operating this website.





